CAD的復制鏈接有什么用?CAD的復制鏈接的作用
經常有人遇到因為代理圖形(PROXY ENTITY)導致無法復制粘貼的問題,網上建議遇到這種情況可以用復制鏈接命令。
CAD的復制鏈接到底是一個什么樣的命令?到底能不能解決這個問題呢?
一、復制鏈接命令是干什么用的?
復制鏈接的命令是COPYLINK,在CAD的幫助里的說明很簡單,只有一句話:
可以將當前視圖復制到剪貼板,然后將剪貼板的內容作為鏈接的 OLE 對象粘貼到另一個文檔中。
如果想把CAD的圖紙復制粘貼到WORD或EXCEL等文檔中,通常我們會先在CAD圖紙中選擇圖形,然后按CTRL+C,然后到WORD或EXCEL里按CTRL+V粘貼。
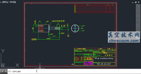
復制連接COPYLINK就是專門干這個事情的,而且跟常規的復制粘貼不同的是,復制粘貼COPYLINK不需要先選擇對象,只要將視圖調整到合適的狀態,然后執行復制鏈接命令,如下圖所示。

然后到WORD或EXCEL里按CTRL+V就可以將圖紙粘貼過來,如下圖所示。

注意觀察的話,可以看到在按CTRL+V后在CAD里進行了一些列操作,生成了一個包括要粘貼圖形的臨時圖形文件,然后才會粘貼到其他軟件中。
復制鏈接沒有默認的快捷鍵,雖然不用選擇圖形,看感覺還不如CTRL+C、CTRL+V操作簡單。
二、復制鏈接是否可以解決無法復制粘貼的問題?
如果圖紙中有一些特殊圖形,比如圖紙中有代理對象(PROXY ENTITY)被選中的時候,用CTRL+C會提示無法復制到剪貼板,如下圖所示。

什么是CAD代理圖形?應該如何處理?
有些專業軟件的自定義對象代理對象是空的,比如天正建筑的墻體等,如果沒有裝天正的時候是看不到的,但有些專業軟件的自定義對象的代理圖形是可見的,上面的圖紙正常顯示應該如下圖所示。

復制鏈接的時候會忽略代理圖形,當圖中包含代理圖形時用復制鏈接,確實不會出現無法復制到剪貼板的提示。如果圖中的代理圖形是多余的數據的話,倒是可以用復制鏈接來解決問題。如果途中的代理圖形是有用的,希望圖紙復制粘貼后保留原來的數據的話,用復制鏈接就不行了。比如說上面的圖紙用復制鏈接后粘貼到新圖中保存,然后即使到有專業軟件的CAD里打開時也會丟失墻體、軸號等圖形,如下圖所示。

所以當圖紙因為代理圖形導致無法復制粘貼的時候,復制鏈接并不是比較好的解決方法。
最好的解決方法還是用支持這些自定義對象的專業軟件打開圖紙進行復制粘貼。
如果代理圖形跟跟自定義對象本來的圖形完全一致,后續圖紙需要在沒有專業軟件的中望CAD中使用的話,可以將代理圖形炸開,然后再復制粘貼。
總之,如果影響復制粘貼的圖形是需要保留的圖形時,不能使用復制鏈接;如果這些圖形是未知的,不需要保留的圖形時,就可以使用復制粘貼。















